การเสริมความแข็งแกร่งต่อแรงสั่นสะเทือนของอาคารบนที่ราบลาด
การเติมและกรองชั้นที่พังทลายและการเสริมแรงด้วยไมโครไพล์
1. ประวัติความเป็นมาของโครงการ
การเสริมความแข็งแกร่งต่อแรงสั่นสะเทือน – มีอาคารสาธารณะตั้งอยู่บนที่ดินลาดที่ติดกับทะเลสภาพดินวิทยาของทรัพย์สินประกอบด้วยแถบหินยางมะตูมกับงอกน้ำตาลขนาดเล็กด้านล่าง, และหินทรายและชาล์ทับซ้อนกันด้านล่างนั้น โครงการนี้ตั้งอยู่ในพื้นที่ที่มีแนวโน้มสูงเกิดแผ่นดินไหว ในขณะที่อาคารถูกใช้งาน, หลังจากที่เกิดแผ่นดินไหวที่แรงหลายครั้ง, แตกเป็นรอยร้าวตามขอบฝั่งทะเลที่ด้านของอาคารที่มองไปที่ทะเล แตกต่างขนาดยังเกิดขึ้นในที่ลานและอาคารของทรัพย์สิน เนื่องจากพื้นที่ตั้งอยู่ในพื้นที่ที่มีแผ่นดินไหวบ่อย, หลังจากการประเมินจากบริษัทของเรา, จึงตัดสินใจที่จะดำเนินการเสริมความแข็งแกร่งต่อแรงสั่นสะเทือนของอาคารและสิ่งอำนวยความสะดวกรอบ ๆ เพื่อให้แน่ใจว่าจะสามารถใช้งานสิ่งอำนวยความสะดวกที่หลากหลายนาน ๆ ได้อย่างปลอดภัย


2. วิธีการแก้ปัญหา
โครงการนี้อยู่ภายใต้การดูแลของภาครัฐ ในขั้นตอนแรกของการออกแบบที่ได้รับมอบหมาย, ใช้แผนการดำเนินงาน 4 ขั้นตอน “การเติม – การปรับปรุง – การเสริมแรง – การซ่อมแซม” เพื่อเสริมความแข็งแกร่งต่ออาคารและสิ่งอำนวยความสะดวกรอบ ๆ สำหรับการปรับปรุงสภาพดินวิทยา, จะใช้กรูตที่ทำจากซีเมนต์เพื่อเติมช่องว่างในชั้นที่พังทลายและรวมกันในมวลหินยางมะตูม สำหรับการเสริมแรง, จะใช้ไมโครไพล์ที่จัดเรียงอย่างแน่นเพื่อสอดแทรกลงในมวลหินที่ปรับปรุงแล้วหรือฟอร์มเมชันหินเพื่อป้องกันการเลื่อนตัวและการเลื่อนข้างที่เกิดจากแผ่นดินไหว หลังจากทำงานที่กล่าวมาแล้วและหลังจากที่การตรวจสอบยืนยันว่าตรงตามข้อกำหนดของการสั่นสะเทือน, รอยแตกที่มีอยู่ของโครงสร้างจะถูกเติมและซ่อมแซม, และภูมิทัศน์ดั้งเดิมจะถูกกู้คืน



3. การออกแบบงาน
ตามผลการศึกษาและการตัดสินใจของรายละเอียดภูมิวิทยาของโครงการนี้, ที่ตั้งของทรัพย์สินอยู่ในประเภทแซดเดิลของฟอร์มเมชันหิน, และความหนาของชั้นคอลลูเวียลส่วนบนมีการเปลี่ยนแปลงมาก หลังจากออกแบบโดยละเอียดตามแผนการออกแบบที่ทางผู้รับจ้างเสนอ, แผนการก่อสร้างเสนอตามนี้:
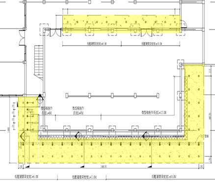
(1) แบ่งช่วงการปรับปรุงกรูตตามภูมิวิทยาเป็นสามบล็อก A, B และ C ตามลักษณะของอาคารและชั้นที่เกิดขึ้น ระยะทางครอบคลุมรวมถึงสถานที่ของอาคารและพื้นที่รอบ ๆ ที่อาจมีการเปลี่ยนแปลงแบบแตกต่างของชั้นที่เกิดขึ้น วิธีการกรูตด้วย Double Packer ถูกนำมาใช้, และระยะห่างของรูคือ 1.5 เมตร; ความลึกเป็น 5~13 เมตร; ระยะห่างของช่องกรูตแนวตั้งเป็น 0.5 เมตรเพื่อการกำหนดค่าที่เหมาะสม
(2) เมื่อท่อ Marshall ที่ฝังถูกฝังลงและเทด้วยกรูต CB, หากเกิดการรั่วของกรูต, วิธีการฉีดและเสริมภายในจะถูกนำมาใช้เพื่อบรรลุวัตถุประสงค์ทั้งสองของการติดตั้งอุปกรณ์ท่อและการเติมช่องว่างในชั้นพังทลายรอบ ๆ
(3) หลังจากที่กรูต CB แข็งตัวและติดตั้งแล้ว, วิธีการกรูตรูที่ข้ามและกรูตที่ถอยกลับจากลาดที่ต่ำไปสู่ลาดที่สูงถูกนำมาใช้ กรูตซีเมนต์ที่มีสัดส่วนของน้ำกับซีเมนต์อยู่ระหว่าง 0.8 ถึง 2.0 ถูกเท, และความดันกรูตเทด้วยความดันเริ่มต้นที่น้อย +50 ถึง 200 kPa เพื่อป้องกันการหลุดออกของกรูตจำนวนมากและทำให้เกิดมลพิษทางสิ่งแวดล้อม
(4) หลังจากการเทเสร็จสมบูรณ์ตามการออกแบบเดิม, ดำเนินการกรูตเพิ่มเติมตามจุดเฉพาะที่แสดงโดยเครื่องบันทึกอัตโนมัติเพื่อให้แน่ใจว่าช่องว่างของชั้นเติมด้วยกรูตที่ปรับปรุงได้อย่างสม่ำเสมอ
(5) เลือกสถานที่ที่แทนที่เพื่อทำการทดสอบความซึมผ่านของน้ำในสถานที่, และดำเนินการกรูตเพิ่มเติมในสถานที่ที่ค่าสัมประสิทธิ์การซึมผ่านของน้ำน้อยกว่า 10-5 ซม./วินาที
(6) เมื่อกรูตการปรับปรุงภูมิวิทยาทรงความแข็งที่ออกแบบ, ติดตั้งไมโครไพล์ที่มีความแน่นอนกับเส้นผ่าศูนย์กลางของเสา 15 ซม.; ความยาว 6-12 เมตร และระยะ 0.2 เมตรในการจัดเรียงที่สลับกัน, และยึดโคร
(7) เมื่อทุกไมโครไพล์เสร็จสิ้น, และหลังจากการตรวจสอบเพื่อตรงตามข้อกำหนดการเสริมสร้างที่ออกแบบ, กรูตเรซินอีพ็อกซี่พิเศษจะถูกใช้เพื่อเติมและเสริมแรงรอยแตกบริเวณโครงสร้าง
(8) หลังจากการทำงานทั้งหมดด้านบนเสร็จสิ้น, โครงการทำสวยของอาคารและการฟื้นฟูสิ่งอำนวยความสะดวกในบริเวณที่รอบ ๆ จะดำเนินการ

4. กระบวนการทำงาน
สิ่งอำนวยความสะดวกสาธารณะไม่สามารถระงับการทำงานในระหว่างการดำเนินงานของโครงการนี้ นอกจากการวางแผนละเอียดของกระบวนการทำงาน, การวางวัสดุ, การผสมกรูต, การสูบและการตั้งค่าพื้นที่จ่ายไฟที่หลากหลายถูกตั้งขึ้นภายนอกอาคารเพื่อหลีกเลี่ยงผลกระทบที่มากเกินไปต่อสิ่งอำนวยความสะดวกเดิม ที่ตั้งของทรัพย์สินอยู่ใต้ชั้นของหินที่พังทลายแข็งที่มีกรวดและทราย, ดังนั้นเพื่อให้ได้ประสิทธิภาพการทำงานที่ดีที่สุด, กระบวนการเจาะที่นำมาใช้คือเครื่องเจาะการตีด้วยลมประสิทธิภาพสูงและเครื่องเจาะขนาดเล็กที่ขับเคลื่อนด้วยตัวเองเพื่อทำรูกรูตกลางแจ้งและในร่ม และไมโครไพล์ตามลำดับ เนื่องจากบริษัทมีประสบการณ์มากในโครงการที่คล้ายกัน, กระบวนการทำงานดำเนินไปอย่างราบรื่น, แต่ท่อภายใต้ดินในบางพื้นที่ซับซ้อน กระบวนการทำงานต้องการการตรวจสอบท่อชั่วคราวและการฟื้นฟูซึ่งใช้เวลาและแรงงานมากขึ้น



5. ผลลัพธ์
เนื่องจากขอบเขตของการปรับปรุงด้านธรณีวิทยานี้เป็นชั้นคลองแคบโปร่งใส, จึงไม่ง่ายที่จะจับจำนวนของวัสดุกรูตที่ใช้ได้ ซึ่งส่งผลให้ต้นทุนการดำเนินการเพิ่มขึ้นเป็นสัดส่วน โชคดีที่บริษัทมีทัศนคติที่เข้มงวดในการทำงานของผู้เชี่ยวชาญ การปรับปรุงด้านธรณีวิทยาและการทำงานไมโครไพล์ทั้งหมดเป็นไปอย่างราบรื่น หลังจากดำเนินการทดสอบหลายครั้ง เช่น การทดสอบการซึมซาบในสถานที่และการทดสอบการบีบอัดกรูตร่วมกับลูกค้า ผลการดำเนินการทั้งหมดตรงตามข้อกำหนดการออกแบบที่กำหนดไว้ตรงตามกำหนดและมีคุณภาพดี การเสริมแรงความสั่นสะเทือนของอาคารบนพื้นที่มีความลาดเอียงและการเสริมแรงสิ่งอำนวยความสะดวกที่อยู่รอบ ๆ ได้สำเร็จแล้ว


・More Construction Result Sharing
Contact us:+886 2769-2355
Seismic Reinforcement of Building on Sloping Site
將下載檔案寄至:
Copyright ©Jines Construction Co.,Ltd